Alle Angaben unter Vorbehalt der behördlichen Bewilligung.
Wir erstellen für Sie moderne 3½- und 4½-Zimmer-Eigentumswohnungen
Willkommen «im Widenpark» Urnäsch AR!
An unverbaubarer, nebelfreier Lage, angrenzend an nicht eingezontes Wiesland entstehen am südlichen Dorfrand zwei Mehrfamilienhäuser mit je sechs Wohnungen. Die ruhige, gut besonnte Parzelle verspricht zusammen mit modernster Bauweise höchsten Wohnkomfort.
- in der Natur wohnen
- unverbaubar an nicht eingezontes Wiesland
- südlich, gut besonnt
- zwei Mehrfamilienhäuser
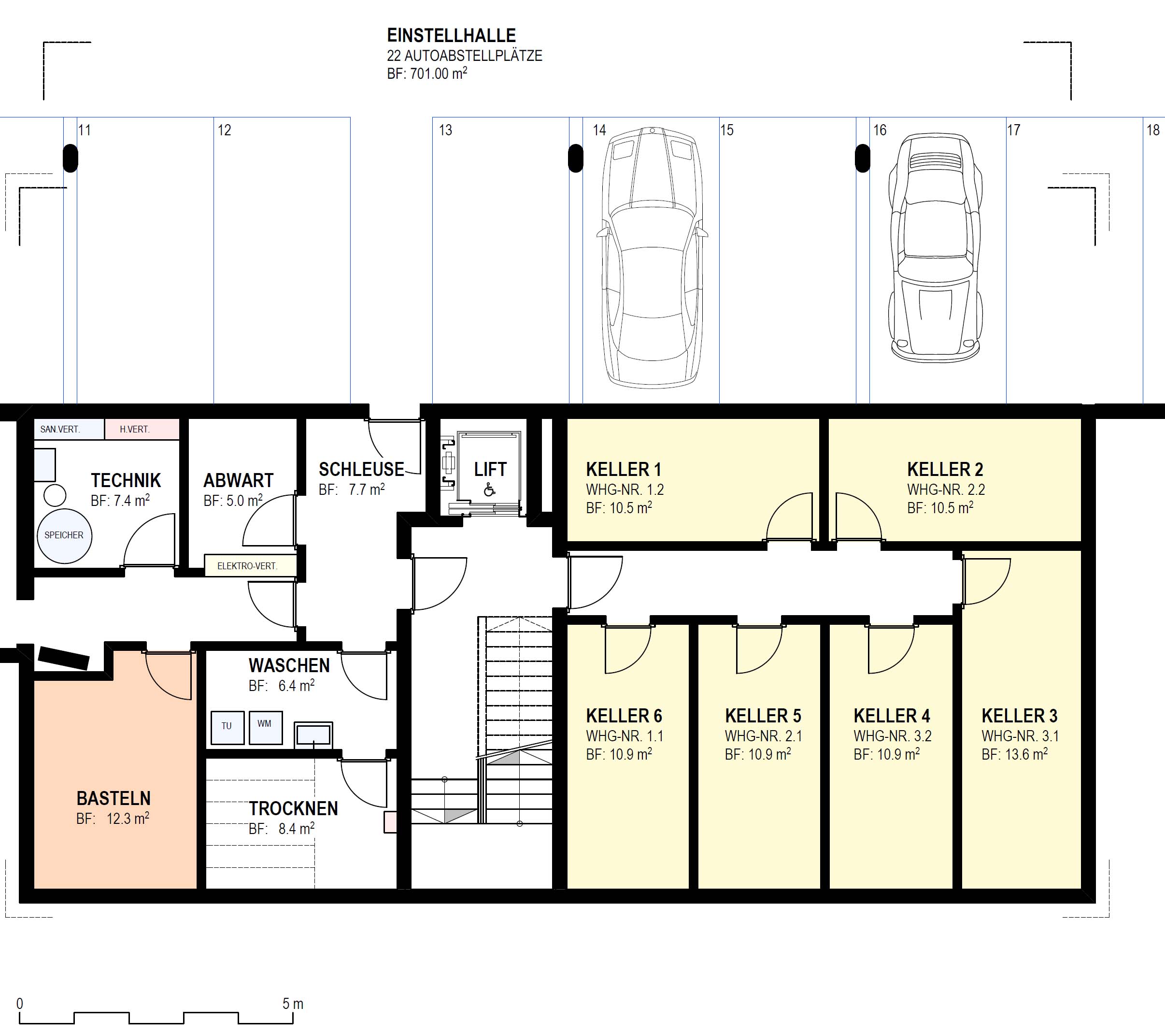
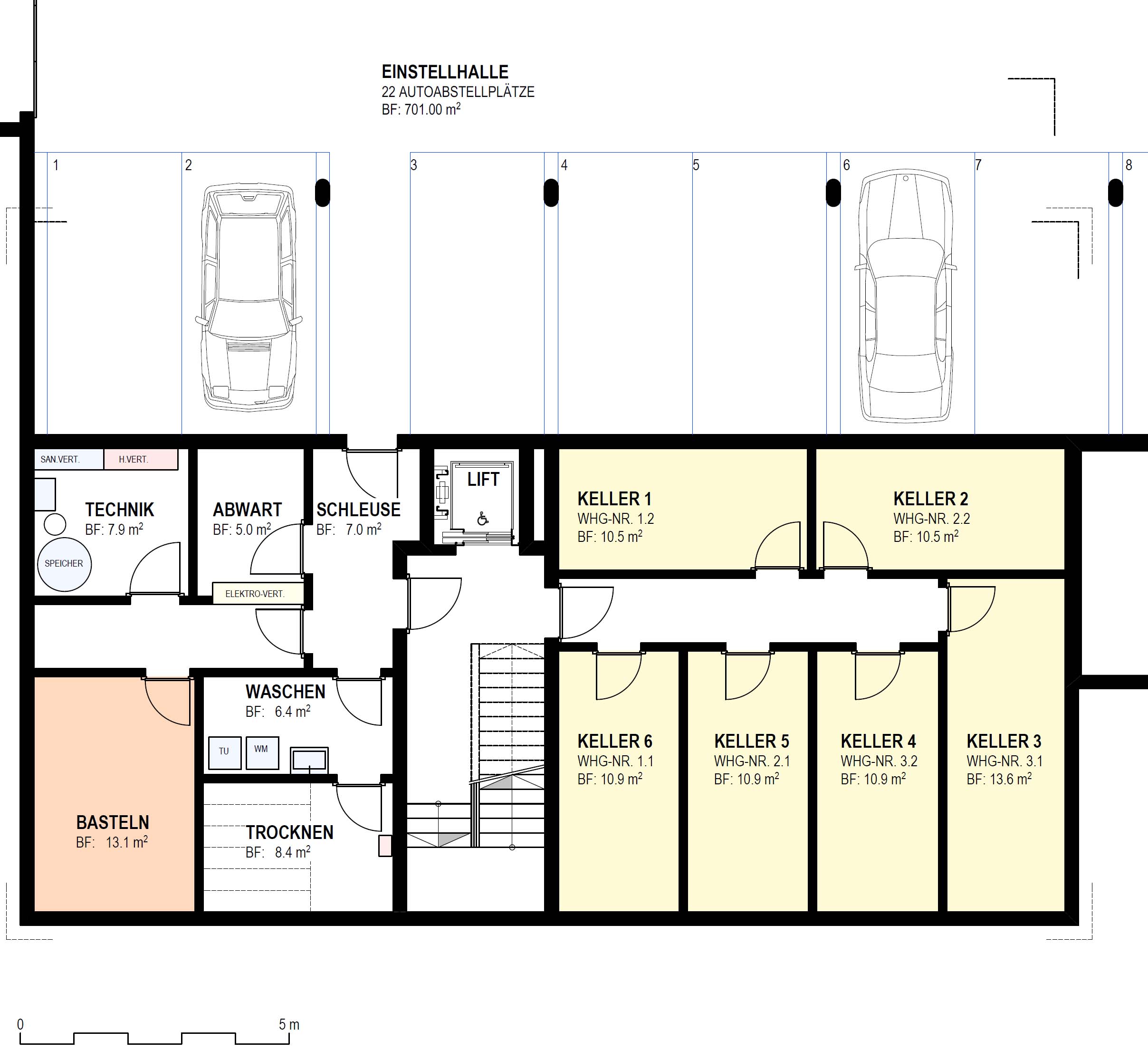
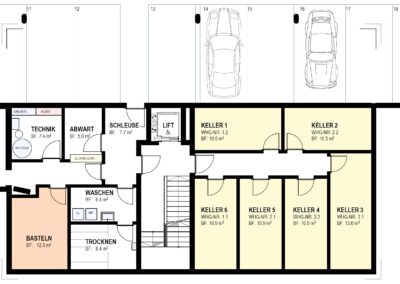
- Tiefgarage und Lift
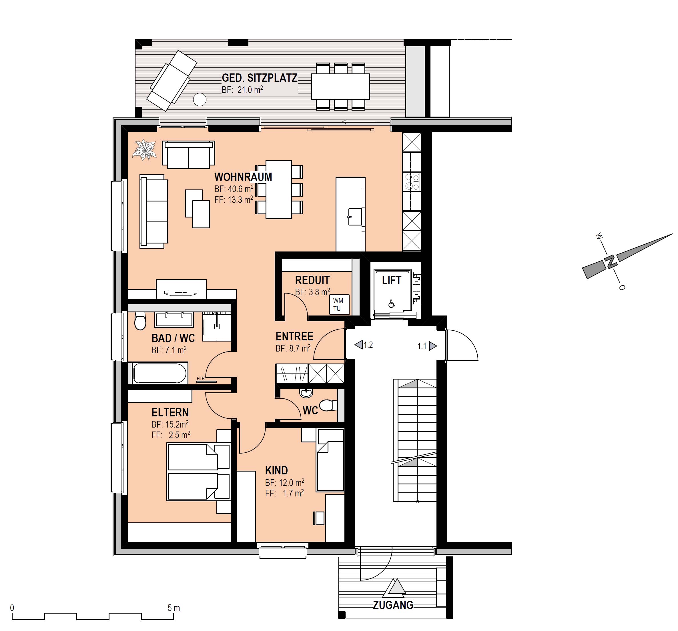
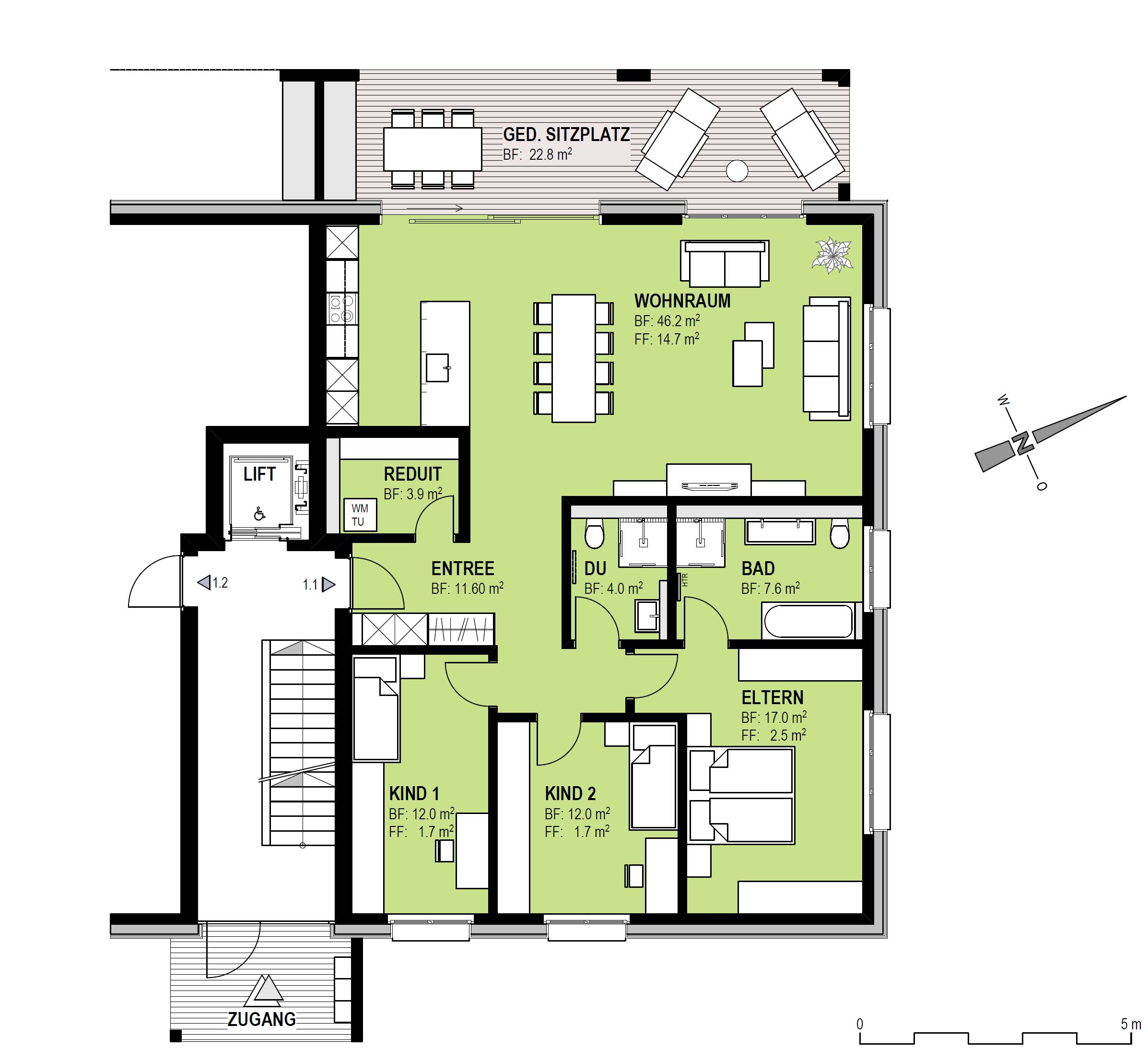
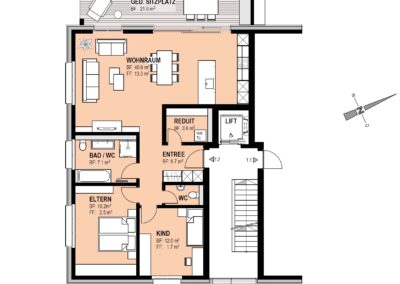
6 x 4½-Zimmer-Wohnung
6 x 3 ½-Zimmer-Wohnung

